Zum Vergrößern auf das Bild klicken. Zum Vergrößern auf das Bild klicken. Zum Vergrößern auf das Bild klicken. Zum Vergrößern auf das Bild klicken. Zum Vergrößern auf das Bild klicken. Zum Vergrößern auf das Bild klicken. Zum Vergrößern auf das Bild klicken. Zum Vergrößern auf das Bild klicken. Zum Vergrößern auf das Bild klicken. Zum Vergrößern auf das Bild klicken. Zum Vergrößern auf das Bild klicken. Zum Vergrößern auf das Bild klicken. Zum Vergrößern auf das Bild klicken. Zum Vergrößern auf das Bild klicken. Zum Vergrößern auf das Bild klicken. Zum Vergrößern auf das Bild klicken.
2009
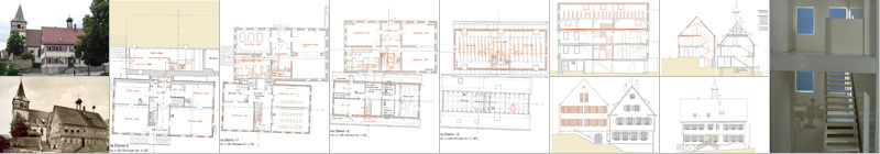
Altes Rathaus und Gemeindehaus Stuttgart Weilimdorf - Kita und Bürgerhaus -




Das denkmalgeschützte historische alte Rathaus in Stuttgart Weilimdorf und das benachbarte ehemalige Gemeindehaus sind aufgrund schwerwiegender Bau- und Brandschutzmängel dringend zu sanieren.

Eine private Kita, die im Gemeindehaus untergebracht ist, soll durch Ausbau des Dachstuhls und optimierter Flächennutzung erweitert werden. Im Dachstuhl ist ein neues gekreuztes Kehlgebälk geplant, damit die erforderliche Höhe und die statisch notwendige Aussteifung des vorhandenen Dachstuhls sichergestellt werden. Ein zweiter baulicher Rettungsweg in Form einer zweiten Treppe ist vorgesehen. Die schadhafte Bausubstanz soll saniert und das Gebäude entsprechend der ENEV hochwertig gedämmt werden.

Im historischen Rathaus findet ein Bürgerhaus (Heimatmuseum, Vortrags- und Gruppenräume) Platz. Die geschädigte Substanz wird entsprechend den Anforderungen des Denkmalschutzes saniert. Ein moderater Wärmeschutz der Fassaden, die Dämmung des Daches, die Erneuerung der Fenster (in historisch angepasster aber zeitgenössischer Gestaltung - vorgesetzte Metallsprossen), senkt den Wärmebedarf deutlich. Die noch gut sichtbaren Arrestzellen im Dach und der Glockenturm, die viel von der historischen Rathausnutzung erzählen, bleiben unverändert erhalten.

Planung:
  2009 (LPH 1-4)
Bauherr:
  Stadt Stuttgart, Amt für Liegenschaften und Wohnen, vertreten durch das Hochbauamt, Frau Becker
Tragwerk:
  Ingenieurbüro Bogenschütz, www.bogen-schuetz.de
Bauaufnahme:
  Büro Strebewerk, www.strebewerk.de
Mitarbeit:
  Wenke Walz